takeofficeなら掲載物件の仲介手数料は無料です

横浜ビジネスパーク(YBP)テクニカルセンター

住所 神奈川県横浜市保土ケ谷区神戸町134
交通 相鉄本線天王町」 徒歩5分
竣工 2001年11月 構造 鉄骨造
規模 地上4階, 地下1階 耐震基準 新耐震基準
床構造 フリーアクセス 100mm 空調設備 個別空調
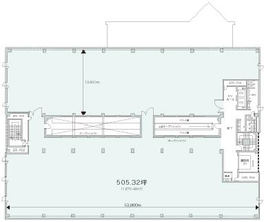
天井高 3000mm 基準階面積 505.32坪(1670.48m2)
コンセント容量 40VA/m2 施工会社

最新の募集状況や類似物件については、
こちらにお問い合わせください。

横浜ビジネスパーク(YBP)テクニカルセンター 外観

外観

  • 横浜ビジネスパーク(YBP)テクニカルセンター エントランス写真

    エントランス

  • 基準階

    基準階

建物パンフレット

建物パンフレットは作成時点のものであり、また計画段階のものも含まれる為、実際とは異なる場合がございます。

内見やお見積りなどの各種お問い合わせ

全物件
仲介手数料無料
仲介から
入居工事まで
ワンストップで対応
経験豊富なスタッフが
スピード感をもって
対応
非公開物件 多数あり!

お問い合わせフォーム