takeofficeなら掲載物件の仲介手数料は無料です

TPR新横浜ビル

住所 神奈川県横浜市港北区新横浜2-13-13
交通 東京メトロ横浜市営地下鉄ブルーライン新横浜」 徒歩2分
JR横浜線新横浜」 徒歩5分
竣工 1993年09月 構造 鉄骨造+SRC
規模 地上8階, 地下1階 耐震基準 新耐震基準
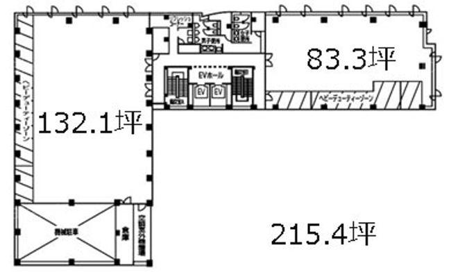
床構造 フリーアクセス 50mm 空調設備 個別空調
天井高 2550mm 基準階面積 --
コンセント容量 - 施工会社

最新の募集状況や類似物件については、
こちらにお問い合わせください。

TPR新横浜ビル 外観

外観

  • NOW PRINTING

    エントランス

内見やお見積りなどの各種お問い合わせ

全物件
仲介手数料無料
仲介から
入居工事まで
ワンストップで対応
経験豊富なスタッフが
スピード感をもって
対応

※「ご相談」と記載されている項目について
賃貸人が募集賃料条件を守秘義務の関係から明示していない場合に、【ご相談】と記載しております。
フリーレント(賃料免除)期間、使用面積、入居時期、テナント様の与信などによりご提示できる条件が若干変化いたします。
お手数ですが、詳細につきましては、上記よりお問い合わせください。

周辺での似た条件の物件

非公開物件 多数あり!

お問い合わせフォーム