takeofficeなら掲載物件の仲介手数料は無料です

リーフスクエア新横浜ビル

住所 神奈川県横浜市港北区新横浜3-7-3
交通 JR横浜線新横浜」 徒歩2分
東京メトロ横浜市営地下鉄ブルーライン新横浜」 徒歩2分
竣工 1986年04月 構造 SRC
規模 地上9階, 地下1階 耐震基準 新耐震基準
床構造 フリーアクセス 50mm 空調設備 個別空調
天井高 2450mm 基準階面積 147.18坪(486.55m2)
コンセント容量 - 施工会社

最新の募集状況や類似物件については、
こちらにお問い合わせください。

リーフスクエア新横浜ビル 外観

外観

  • NOW PRINTING

    エントランス

  • 基準階

    基準階

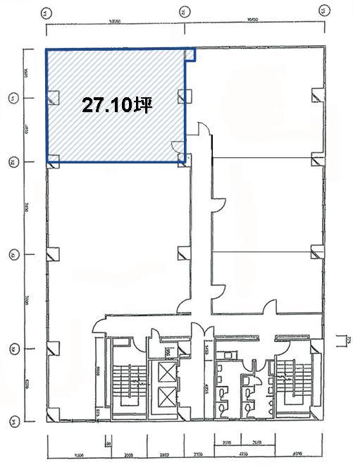
  • 4F

    4F

  • 6F

    6F

  • 7F

    7F

内見やお見積りなどの各種お問い合わせ

全物件
仲介手数料無料
仲介から
入居工事まで
ワンストップで対応
経験豊富なスタッフが
スピード感をもって
対応

周辺での似た条件の物件

非公開物件 多数あり!

お問い合わせフォーム