takeofficeなら掲載物件の仲介手数料は無料です

いちご新横浜ビル

住所 神奈川県横浜市港北区新横浜3-17-5
交通 東京メトロ横浜市営地下鉄ブルーライン新横浜」 徒歩3分
JR横浜線新横浜」 徒歩7分
竣工 1992年03月 構造 SRC
規模 地上9階, 地下2階 耐震基準 新耐震基準
床構造 フリーアクセス 50mm 空調設備 個別空調
天井高 2500mm 基準階面積 145.96坪(482.51m2)
コンセント容量 - 施工会社

最新の募集状況や類似物件については、
こちらにお問い合わせください。

いちご新横浜ビル 外観

外観

  • いちご新横浜ビル エントランス写真

    エントランス

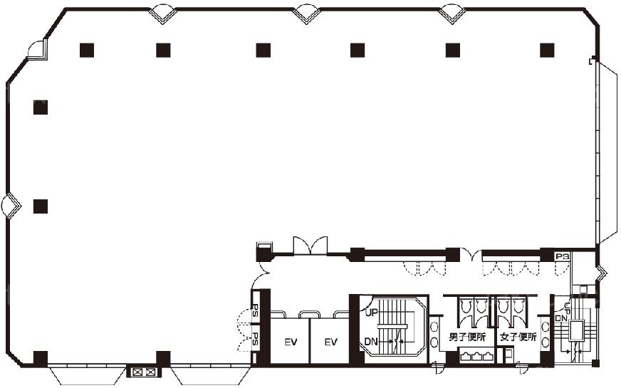
  • 基準階(5~8F)

    基準階(5~8F)

内見やお見積りなどの各種お問い合わせ

全物件
仲介手数料無料
仲介から
入居工事まで
ワンストップで対応
経験豊富なスタッフが
スピード感をもって
対応

周辺での似た条件の物件

非公開物件 多数あり!

お問い合わせフォーム