takeofficeなら掲載物件の仲介手数料は無料です

野村不動産新横浜ビル

住所 神奈川県横浜市港北区新横浜2-10-23
交通 東京メトロ横浜市営地下鉄ブルーライン新横浜」 徒歩7分
JR横浜線新横浜」 徒歩8分
竣工 2009年10月 構造 鉄骨造+RC
規模 地上7階, 地下1階 耐震基準 新耐震基準
床構造 フリーアクセス 100mm 空調設備 個別空調
天井高 2800mm 基準階面積 800.04坪(2644.76m2)
コンセント容量 70VA/m2 施工会社

最新の募集状況や類似物件については、
こちらにお問い合わせください。

野村不動産新横浜ビル 外観

外観

  • 野村不動産新横浜ビル エントランス写真

    エントランス

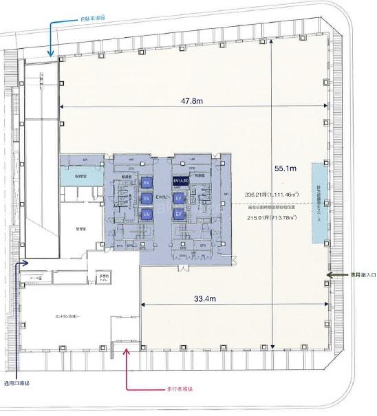
  • 基準階

    基準階

  • 1F

    1F

  • B1F

    B1F

内見やお見積りなどの各種お問い合わせ

全物件
仲介手数料無料
仲介から
入居工事まで
ワンストップで対応
経験豊富なスタッフが
スピード感をもって
対応
非公開物件 多数あり!

お問い合わせフォーム