takeofficeなら掲載物件の仲介手数料は無料です

扶桑ビル

住所 神奈川県横浜市港北区新横浜2-12-8
交通 JR横浜線新横浜」 徒歩8分
竣工 1985年09月 構造 SRC
規模 地上7階 耐震基準 新耐震基準
床構造 フリーアクセス 空調設備 個別空調
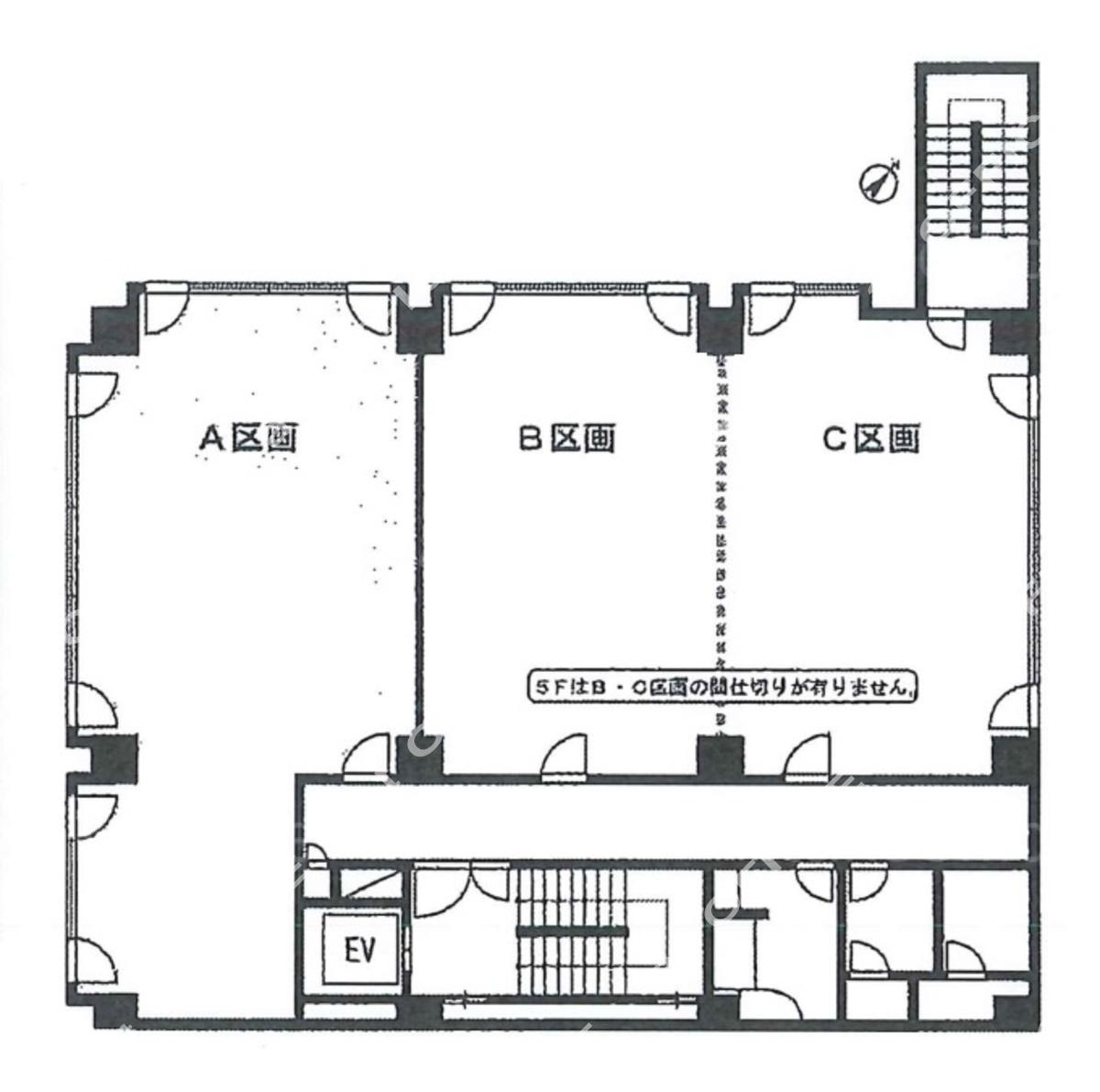
天井高 2540mm 基準階面積 72.26坪(238.88m2)
コンセント容量 - 施工会社

最新の募集状況や類似物件については、
こちらにお問い合わせください。

扶桑ビル 外観

外観

  • NOW PRINTING

    エントランス

内見やお見積りなどの各種お問い合わせ

全物件
仲介手数料無料
仲介から
入居工事まで
ワンストップで対応
経験豊富なスタッフが
スピード感をもって
対応

周辺での似た条件の物件

非公開物件 多数あり!

お問い合わせフォーム