takeofficeなら掲載物件の仲介手数料は無料です

ハウスクエア横浜

住所 神奈川県横浜市都筑区中川1-4-1
交通 -
竣工 1995年03月 構造 RC
規模 地上4階, 地下1階 耐震基準 新耐震基準
床構造 - 空調設備 個別空調
天井高 - 基準階面積 --
コンセント容量 - 施工会社

最新の募集状況や類似物件については、
こちらにお問い合わせください。

ハウスクエア横浜 外観

外観

  • ハウスクエア横浜 エントランス写真

    エントランス

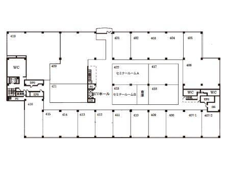
  • 4F

    4F

内見やお見積りなどの各種お問い合わせ

全物件
仲介手数料無料
仲介から
入居工事まで
ワンストップで対応
経験豊富なスタッフが
スピード感をもって
対応

周辺での似た条件の物件

非公開物件 多数あり!

お問い合わせフォーム