takeofficeなら掲載物件の仲介手数料は無料です

溝ノ口第一生命ビル

住所 神奈川県川崎市高津区久本3-3-2
交通 -
竣工 1987年02月 構造 SRC
規模 地上7階 耐震基準 新耐震基準
床構造 - 空調設備 -
天井高 - 基準階面積 96.04坪(317.49m2)
コンセント容量 - 施工会社

最新の募集状況や類似物件については、
こちらにお問い合わせください。

溝ノ口第一生命ビル 外観

外観

  • NOW PRINTING

    エントランス

  • 基準階(2~7F)

    基準階(2~7F)

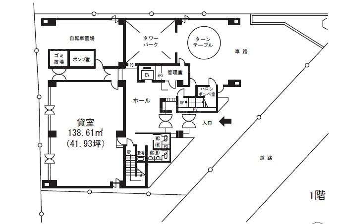
  • 1F

    1F

内見やお見積りなどの各種お問い合わせ

全物件
仲介手数料無料
仲介から
入居工事まで
ワンストップで対応
経験豊富なスタッフが
スピード感をもって
対応
非公開物件 多数あり!

お問い合わせフォーム