takeofficeなら掲載物件の仲介手数料は無料です

アーバンネット新潟笹口ビル

住所 新潟県新潟市中央区笹口1-26-9
交通 JR越後線新潟」 徒歩5分
竣工 2001年05月 構造 鉄骨造
規模 地上8階 耐震基準 新耐震基準
床構造 フリーアクセス 100mm 空調設備 個別空調
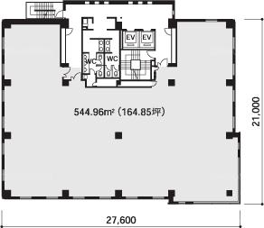
天井高 2650mm 基準階面積 164.85坪(544.96m2)
コンセント容量 45VA/m2 施工会社

最新の募集状況や類似物件については、
こちらにお問い合わせください。

アーバンネット新潟笹口ビル 外観

外観

  • アーバンネット新潟笹口ビル エントランス写真

    エントランス

  • 基準階

    基準階

内見やお見積りなどの各種お問い合わせ

全物件
仲介手数料無料
仲介から
入居工事まで
ワンストップで対応
経験豊富なスタッフが
スピード感をもって
対応
非公開物件 多数あり!

お問い合わせフォーム