takeofficeなら掲載物件の仲介手数料は無料です

サクラNビル(旧:三井生命福井ビル)

住所 福井県福井市宝永4-3-1
交通 -
竣工 1973年11月 構造 SRC
規模 地上8階, 地下1階 耐震基準 新耐震基準
床構造 - 空調設備 個別空調
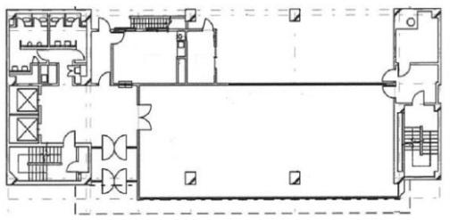
天井高 2450mm 基準階面積 121.44坪(401.45m2)
コンセント容量 - 施工会社

最新の募集状況や類似物件については、
こちらにお問い合わせください。

サクラNビル(旧:三井生命福井ビル) 外観

外観

  • NOW PRINTING

    エントランス

  • 基準階

    基準階

  • 1F

    1F

内見やお見積りなどの各種お問い合わせ

全物件
仲介手数料無料
仲介から
入居工事まで
ワンストップで対応
経験豊富なスタッフが
スピード感をもって
対応
非公開物件 多数あり!

お問い合わせフォーム