takeofficeなら掲載物件の仲介手数料は無料です

桜通豊田ビル(旧:近鉄新名古屋ビル)

住所 愛知県名古屋市中村区名駅4-5-28
交通 JR東海道新幹線名古屋」 徒歩3分
近鉄名古屋線近鉄名古屋」 徒歩4分
竣工 1993年03月 構造 鉄骨造+SRC
規模 地上18階, 地下1階 耐震基準 新耐震基準
床構造 フリーアクセス 80mm 空調設備 個別空調
天井高 2600mm 基準階面積 300.57坪(993.63m2)
コンセント容量 40VA/m2 施工会社

最新の募集状況や類似物件については、
こちらにお問い合わせください。

桜通豊田ビル(旧:近鉄新名古屋ビル) 外観

外観

  • NOW PRINTING

    エントランス

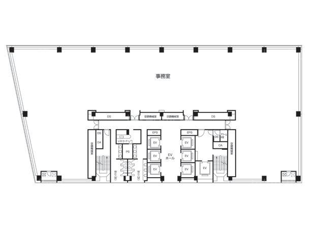
  • 基準階

    基準階

内見やお見積りなどの各種お問い合わせ

全物件
仲介手数料無料
仲介から
入居工事まで
ワンストップで対応
経験豊富なスタッフが
スピード感をもって
対応
非公開物件 多数あり!

お問い合わせフォーム