takeofficeなら掲載物件の仲介手数料は無料です

KDX名古屋駅前ビル

住所 愛知県名古屋市中村区名駅3-26-8
交通 JR東海道新幹線名古屋」 徒歩4分
竣工 1986年08月 構造 -
規模 地上14階, 地下2階 耐震基準 新耐震基準
床構造 フリーアクセス 空調設備 セントラル空調
天井高 2600mm 基準階面積 --
コンセント容量 - 施工会社

最新の募集状況や類似物件については、
こちらにお問い合わせください。

KDX名古屋駅前ビル 外観

外観

  • NOW PRINTING

    エントランス

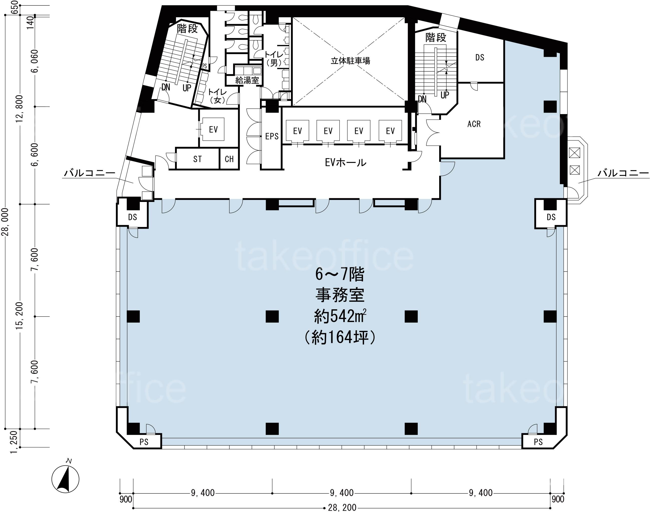
  • 基準階

    基準階

内見やお見積りなどの各種お問い合わせ

全物件
仲介手数料無料
仲介から
入居工事まで
ワンストップで対応
経験豊富なスタッフが
スピード感をもって
対応

周辺での似た条件の物件

非公開物件 多数あり!

お問い合わせフォーム