takeofficeなら掲載物件の仲介手数料は無料です

名駅Minami-One

住所 愛知県名古屋市中村区名駅南1-11-12
交通 東海道本線名古屋」 徒歩13分
竣工 2008年09月 構造 SRC
規模 地上8階, 地下1階 耐震基準 新耐震基準
床構造 フリーアクセス 100mm 空調設備 個別空調
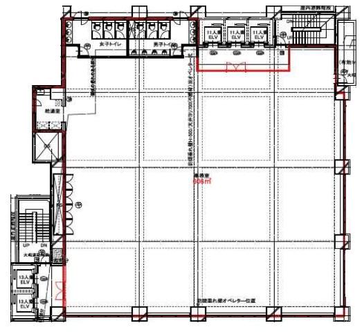
天井高 2700mm 基準階面積 183.31坪(605.98m2)
コンセント容量 100VA/m2 施工会社 ソフトウェア興業設備

最新の募集状況や類似物件については、
こちらにお問い合わせください。

名駅Minami-One 外観

外観

  • 名駅Minami-One エントランス写真

    エントランス

  • 基準階(2~8F)

    基準階(2~8F)

内見やお見積りなどの各種お問い合わせ

全物件
仲介手数料無料
仲介から
入居工事まで
ワンストップで対応
経験豊富なスタッフが
スピード感をもって
対応

周辺での似た条件の物件

非公開物件 多数あり!

お問い合わせフォーム