takeofficeなら掲載物件の仲介手数料は無料です

金山総合ビル

住所 愛知県名古屋市中区金山1-12-14
交通 東海道本線金山」 徒歩5分
名城線東別院」 徒歩9分
名城線西高蔵」 徒歩16分
竣工 1979年03月 構造 SRC
規模 地上10階, 地下2階 耐震基準 -
床構造 - 空調設備 フロア別+個別
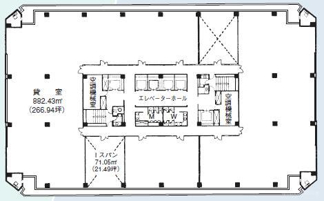
天井高 - 基準階面積 266.94坪(882.45m2)
コンセント容量 - 施工会社 竹中工務店、大成建設

最新の募集状況や類似物件については、
こちらにお問い合わせください。

金山総合ビル 外観

外観

  • 金山総合ビル エントランス写真

    エントランス

  • 基準階(3~8F)

    基準階(3~8F)

内見やお見積りなどの各種お問い合わせ

全物件
仲介手数料無料
仲介から
入居工事まで
ワンストップで対応
経験豊富なスタッフが
スピード感をもって
対応

周辺での似た条件の物件

非公開物件 多数あり!

お問い合わせフォーム