takeofficeなら掲載物件の仲介手数料は無料です

SC伏見BLDG

住所 愛知県名古屋市中区錦2-16-26
交通 鶴舞線伏見」 徒歩1分
竣工 2009年10月 構造 鉄骨造
規模 地上12階 耐震基準 新耐震基準
床構造 フリーアクセス 100mm 空調設備 -
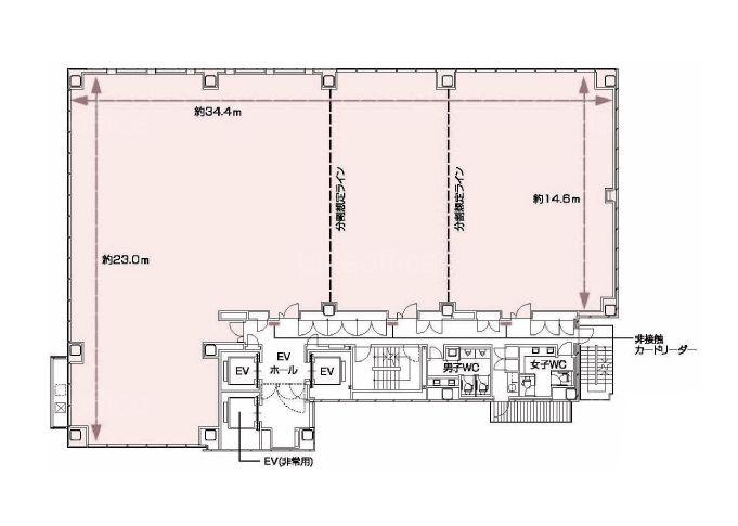
天井高 2800mm 基準階面積 173.33坪(573m2)
コンセント容量 30VA/m2 施工会社

最新の募集状況や類似物件については、
こちらにお問い合わせください。

SC伏見BLDG 外観

外観

  • NOW PRINTING

    エントランス

  • 基準階

    基準階

内見やお見積りなどの各種お問い合わせ

全物件
仲介手数料無料
仲介から
入居工事まで
ワンストップで対応
経験豊富なスタッフが
スピード感をもって
対応

周辺での似た条件の物件

非公開物件 多数あり!

お問い合わせフォーム