takeofficeなら掲載物件の仲介手数料は無料です

ラウンドテラス伏見

住所 愛知県名古屋市中区錦1-17-26
交通 鶴舞線伏見」 徒歩4分
竣工 2009年06月 構造 RC
規模 地上10階, 地下2階 耐震基準 新耐震基準
床構造 フリーアクセス 50mm 空調設備 個別空調
天井高 2700mm 基準階面積 166.5坪(550.41m2)
コンセント容量 - 施工会社
坪面積 用途 賃料 坪単価 共益費 入居可能日
6 56.81坪 事務所 相談 相談 相談
4 50.33坪 事務所 相談 相談 相談
ラウンドテラス伏見 外観

外観

  • ラウンドテラス伏見 エントランス写真

    エントランス

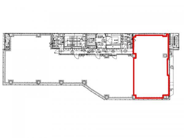
  • 基準階

    基準階

内見やお見積りなどの各種お問い合わせ

全物件
仲介手数料無料
仲介から
入居工事まで
ワンストップで対応
経験豊富なスタッフが
スピード感をもって
対応

※「ご相談」と記載されている項目について
賃貸人が募集賃料条件を守秘義務の関係から明示していない場合に、【ご相談】と記載しております。
フリーレント(賃料免除)期間、使用面積、入居時期、テナント様の与信などによりご提示できる条件が若干変化いたします。
お手数ですが、詳細につきましては、上記よりお問い合わせください。

非公開物件 多数あり!

お問い合わせフォーム