takeofficeなら掲載物件の仲介手数料は無料です

日本生命栄町ビル

住所 愛知県名古屋市中区錦3-24-17
交通 東山線」 徒歩1分
竣工 1962年 月 構造 SRC
規模 地上9階, 地下3階 耐震基準 -
床構造 フリーアクセス 40mm 空調設備 ゾーン別+個別
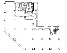
天井高 2560mm 基準階面積 227坪(750.41m2)
コンセント容量 - 施工会社

最新の募集状況や類似物件については、
こちらにお問い合わせください。

日本生命栄町ビル
 外観

外観

  • NOW PRINTING

    エントランス

  • 基準階

    基準階

内見やお見積りなどの各種お問い合わせ

全物件
仲介手数料無料
仲介から
入居工事まで
ワンストップで対応
経験豊富なスタッフが
スピード感をもって
対応

周辺での似た条件の物件

非公開物件 多数あり!

お問い合わせフォーム