takeofficeなら掲載物件の仲介手数料は無料です

CBCアネックス栄

住所 愛知県名古屋市中区錦3-6-35
交通 桜通線久屋大通」 徒歩1分
東山線」 徒歩4分
竣工 1989年01月 構造 SRC
規模 地上9階, 地下1階 耐震基準 新耐震基準
床構造 フリーアクセス 空調設備 個別空調
天井高 - 基準階面積 54.12坪(178.91m2)
コンセント容量 - 施工会社 清水建設

最新の募集状況や類似物件については、
こちらにお問い合わせください。

CBCアネックス栄 外観

外観

  • CBCアネックス栄 エントランス写真

    エントランス

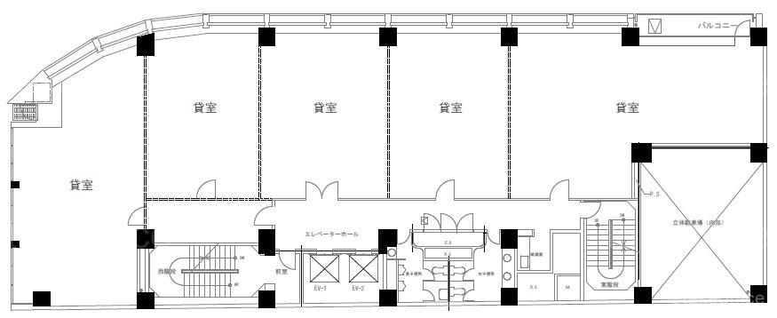
  • 基準階

    基準階

内見やお見積りなどの各種お問い合わせ

全物件
仲介手数料無料
仲介から
入居工事まで
ワンストップで対応
経験豊富なスタッフが
スピード感をもって
対応

周辺での似た条件の物件

非公開物件 多数あり!

お問い合わせフォーム