takeofficeなら掲載物件の仲介手数料は無料です

うおいちニッセイビル

住所 大阪府大阪市福島区野田2-13-5
交通 大阪環状線野田」 徒歩5分
竣工 1991年 月 構造 RC
規模 地上7階 耐震基準 新耐震基準
床構造 フリーアクセス 50mm 空調設備 ゾーン別+個別
天井高 2550mm 基準階面積 139坪(459.5m2)
コンセント容量 - 施工会社

最新の募集状況や類似物件については、
こちらにお問い合わせください。

うおいちニッセイビル
 外観

外観

  • NOW PRINTING

    エントランス

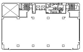
  • 基準階

    基準階

内見やお見積りなどの各種お問い合わせ

全物件
仲介手数料無料
仲介から
入居工事まで
ワンストップで対応
経験豊富なスタッフが
スピード感をもって
対応
非公開物件 多数あり!

お問い合わせフォーム