takeofficeなら掲載物件の仲介手数料は無料です

アーバンエース肥後橋ビル

住所 大阪府大阪市西区土佐堀1-4-14
交通 四つ橋線肥後橋」 徒歩5分
竣工 1997年01月 構造 鉄骨造+SRC
規模 地上13階, 地下2階 耐震基準 新耐震基準
床構造 フリーアクセス 100mm 空調設備 個別空調
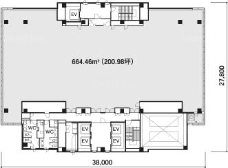
天井高 2700mm 基準階面積 200.98坪(664.4m2)
コンセント容量 40VA/m2 施工会社

最新の募集状況や類似物件については、
こちらにお問い合わせください。

アーバンエース肥後橋ビル
 外観

外観

  • NOW PRINTING

    エントランス

  • 基準階

    基準階

内見やお見積りなどの各種お問い合わせ

全物件
仲介手数料無料
仲介から
入居工事まで
ワンストップで対応
経験豊富なスタッフが
スピード感をもって
対応

周辺での似た条件の物件

非公開物件 多数あり!

お問い合わせフォーム