takeofficeなら掲載物件の仲介手数料は無料です

金鳥土佐堀ビル

住所 大阪府大阪市西区土佐堀1-4-11
交通 四つ橋線肥後橋」 徒歩4分
竣工 1988年 月 構造 SRC
規模 地上14階, 地下2階 耐震基準 新耐震基準
床構造 フリーアクセス 50mm 空調設備 フロア別空調
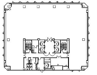
天井高 2450mm 基準階面積 186坪(614.88m2)
コンセント容量 - 施工会社

最新の募集状況や類似物件については、
こちらにお問い合わせください。

金鳥土佐堀ビル
 外観

外観

  • NOW PRINTING

    エントランス

  • 基準階

    基準階

内見やお見積りなどの各種お問い合わせ

全物件
仲介手数料無料
仲介から
入居工事まで
ワンストップで対応
経験豊富なスタッフが
スピード感をもって
対応

周辺での似た条件の物件

非公開物件 多数あり!

お問い合わせフォーム