takeofficeなら掲載物件の仲介手数料は無料です

NANT仙台南町

住所 宮城県仙台市青葉区中央3-4-12
交通 JR常磐線仙台」 徒歩7分
竣工 2025年06月 構造 鉄骨造+RC
規模 地上11階, 地下1階 耐震基準 新耐震基準
床構造 フリーアクセス 100mm 空調設備 個別空調
天井高 2800mm 基準階面積 239坪(790.08m2)
コンセント容量 60VA/m2 施工会社
坪面積 用途 賃料 坪単価 共益費 入居可能日
11 258.36坪 事務所 相談 相談 相談
4 213.57坪 事務所 相談 相談 相談
5 126.6坪 事務所 相談 相談 相談
4 60.5坪 事務所 相談 相談 相談
6 239.41坪 事務所 相談 相談 相談
9 258.36坪 事務所 相談 相談 相談
3 60.5坪 事務所 相談 相談 相談
5 82.48坪 事務所 相談 相談 相談
2 92.98坪 事務所 相談 相談 相談
7 239.09坪 事務所 相談 相談 相談
10 258.36坪 事務所 相談 相談 相談
NANT仙台南町 外観

外観

  • NANT仙台南町 エントランス写真

    エントランス

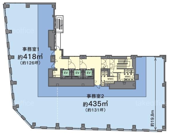
  • 基準階(3~6F)

    基準階(3~6F)

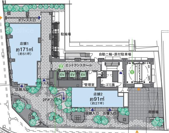
  • 1F

    1F

  • 2F

    2F

  • 7・8F

    7・8F

  • 9~11F

    9~11F

内見やお見積りなどの各種お問い合わせ

全物件
仲介手数料無料
仲介から
入居工事まで
ワンストップで対応
経験豊富なスタッフが
スピード感をもって
対応

※「ご相談」と記載されている項目について
賃貸人が募集賃料条件を守秘義務の関係から明示していない場合に、【ご相談】と記載しております。
フリーレント(賃料免除)期間、使用面積、入居時期、テナント様の与信などによりご提示できる条件が若干変化いたします。
お手数ですが、詳細につきましては、上記よりお問い合わせください。

周辺での似た条件の物件

非公開物件 多数あり!

お問い合わせフォーム