takeofficeなら掲載物件の仲介手数料は無料です

イトーピア岩本町2丁目ビル

住所 東京都千代田区岩本町2-11-2
交通 都営新宿線岩本町」 徒歩3分
東京メトロ日比谷線小伝馬町」 徒歩5分
JR山手線秋葉原」 徒歩7分
竣工 1991年02月 構造 SRC
規模 地上8階, 地下1階 耐震基準 新耐震基準
床構造 フリーアクセス 50mm 空調設備 個別空調
天井高 2530mm 基準階面積 132.03坪(436.46m2)
コンセント容量 - 施工会社

最新の募集状況や類似物件については、
こちらにお問い合わせください。

イトーピア岩本町2丁目ビル 外観

外観

  • イトーピア岩本町2丁目ビル エントランス写真

    エントランス

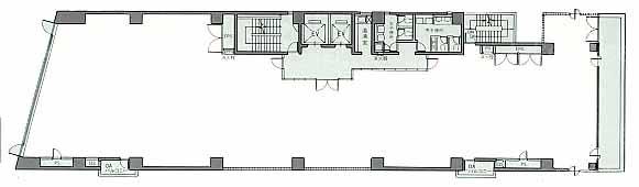
  • 基準階(6~8F)

    基準階(6~8F)

  • 1F

    1F

  • 2F

    2F

  • 3~4F

    3~4F

  • 5F

    5F

建物パンフレット

建物パンフレットは作成時点のものであり、また計画段階のものも含まれる為、実際とは異なる場合がございます。

内見やお見積りなどの各種お問い合わせ

全物件
仲介手数料無料
仲介から
入居工事まで
ワンストップで対応
経験豊富なスタッフが
スピード感をもって
対応

周辺での似た条件の物件

非公開物件 多数あり!

お問い合わせフォーム