takeofficeなら掲載物件の仲介手数料は無料です

千代田岩本ビル

住所 東京都千代田区岩本町3-2-2
交通 都営新宿線岩本町」 徒歩1分
JR山手線秋葉原」 徒歩4分
東京メトロ銀座線神田」 徒歩6分
竣工 1983年12月 構造 SRC
規模 地上9階, 地下1階 耐震基準 新耐震基準
床構造 - 空調設備 個別空調
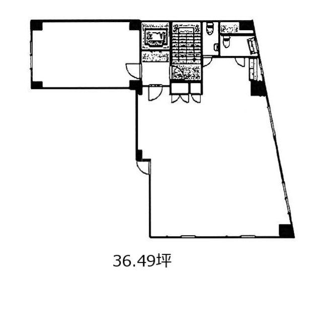
天井高 - 基準階面積 36.49坪(120.63m2)
コンセント容量 - 施工会社

最新の募集状況や類似物件については、
こちらにお問い合わせください。

千代田岩本ビル 外観

外観

  • 千代田岩本ビル エントランス写真

    エントランス

  • 基準階

    基準階

  • 1F

    1F

内見やお見積りなどの各種お問い合わせ

全物件
仲介手数料無料
仲介から
入居工事まで
ワンストップで対応
経験豊富なスタッフが
スピード感をもって
対応

周辺での似た条件の物件

非公開物件 多数あり!

お問い合わせフォーム