takeofficeなら掲載物件の仲介手数料は無料です

秋葉原花岡ビル

住所 東京都千代田区岩本町3-10-9
交通 JR山手線秋葉原」 徒歩2分
都営新宿線岩本町」 徒歩2分
東京メトロ日比谷線秋葉原」 徒歩3分
竣工 1981年03月 構造 RC
規模 地上6階, 地下1階 耐震基準 旧耐震基準
床構造 フリーアクセス 50mm 空調設備 個別空調
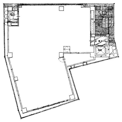
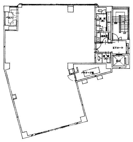
天井高 2500mm 基準階面積 58.26坪(192.6m2)
コンセント容量 - 施工会社

最新の募集状況や類似物件については、
こちらにお問い合わせください。

秋葉原花岡ビル 外観

外観

内見やお見積りなどの各種お問い合わせ

全物件
仲介手数料無料
仲介から
入居工事まで
ワンストップで対応
経験豊富なスタッフが
スピード感をもって
対応

周辺での似た条件の物件

非公開物件 多数あり!

お問い合わせフォーム