takeofficeなら掲載物件の仲介手数料は無料です

S-GATE秋葉原

住所 東京都千代田区東神田2-4-6
交通 JR山手線秋葉原」 徒歩5分
都営新宿線岩本町」 徒歩5分
JR総武線(快速)馬喰町」 徒歩7分
竣工 2017年09月 構造 鉄骨造
規模 地上8階 耐震基準 新耐震基準
床構造 フリーアクセス 10mm 空調設備 個別空調
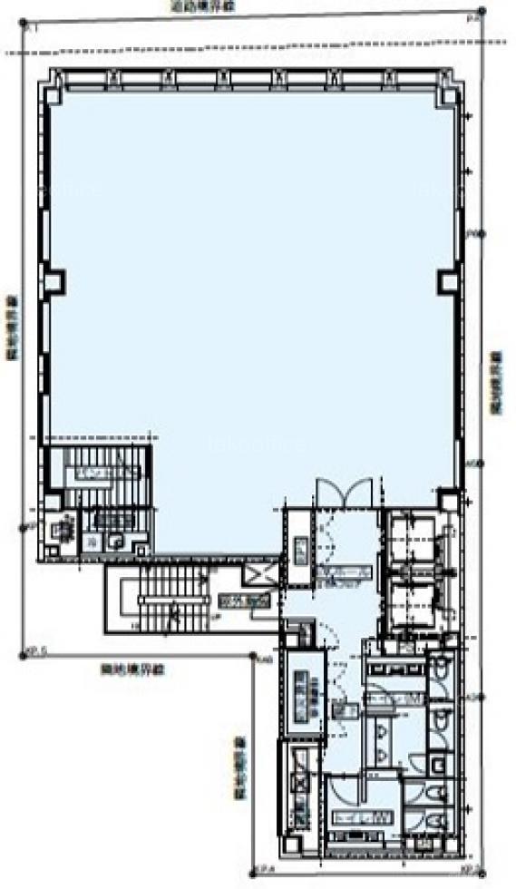
天井高 2800mm 基準階面積 74.72坪(247m2)
コンセント容量 - 施工会社 五洋建設
坪面積 用途 賃料 坪単価 共益費 入居可能日
5 74.52坪 事務所 募集終了登録日: 2026年02月03日
S-GATE秋葉原 外観

外観

建物パンフレット

建物パンフレットは作成時点のものであり、また計画段階のものも含まれる為、実際とは異なる場合がございます。

内見やお見積りなどの各種お問い合わせ

全物件
仲介手数料無料
仲介から
入居工事まで
ワンストップで対応
経験豊富なスタッフが
スピード感をもって
対応

※「ご相談」と記載されている項目について
賃貸人が募集賃料条件を守秘義務の関係から明示していない場合に、【ご相談】と記載しております。
フリーレント(賃料免除)期間、使用面積、入居時期、テナント様の与信などによりご提示できる条件が若干変化いたします。
お手数ですが、詳細につきましては、上記よりお問い合わせください。

周辺での似た条件の物件

非公開物件 多数あり!

お問い合わせフォーム