takeofficeなら掲載物件の仲介手数料は無料です

アプロンビル

住所 東京都千代田区東神田1-5-7
交通 JR総武線(快速)馬喰町」 徒歩5分
都営新宿線岩本町」 徒歩7分
東京メトロ日比谷線小伝馬町」 徒歩7分
竣工 1991年 構造 鉄骨造
規模 地上8階 耐震基準 新耐震基準
床構造 - 空調設備 個別空調
天井高 2450mm 基準階面積 50.93坪(168.36m2)
コンセント容量 - 施工会社

最新の募集状況や類似物件については、
こちらにお問い合わせください。

アプロンビル 外観

外観

  • アプロンビル エントランス写真

    エントランス

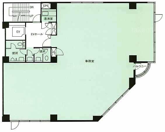
  • 基準階(2~8F)

    基準階(2~8F)

  • 1F

    1F

内見やお見積りなどの各種お問い合わせ

全物件
仲介手数料無料
仲介から
入居工事まで
ワンストップで対応
経験豊富なスタッフが
スピード感をもって
対応

周辺での似た条件の物件

非公開物件 多数あり!

お問い合わせフォーム