takeofficeなら掲載物件の仲介手数料は無料です

南日本ビル(旧:篠田ビル)

住所 東京都千代田区東神田1-10-7
交通 JR総武線(快速)馬喰町」 徒歩3分
都営新宿線岩本町」 徒歩5分
都営浅草線浅草橋」 徒歩7分
竣工 1978年01月 構造 SRC
規模 地上9階, 地下0階 耐震基準 旧耐震基準
床構造 - 空調設備 個別空調
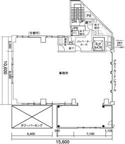
天井高 2400mm 基準階面積 65坪(214m2)
コンセント容量 - 施工会社

最新の募集状況や類似物件については、
こちらにお問い合わせください。

南日本ビル(旧:篠田ビル) 外観

外観

  • NOW PRINTING

    エントランス

内見やお見積りなどの各種お問い合わせ

全物件
仲介手数料無料
仲介から
入居工事まで
ワンストップで対応
経験豊富なスタッフが
スピード感をもって
対応

周辺での似た条件の物件

非公開物件 多数あり!

お問い合わせフォーム