takeofficeなら掲載物件の仲介手数料は無料です

TQ東神田

住所 東京都千代田区東神田1-11-14
交通 JR総武線(快速)馬喰町」 徒歩5分
都営新宿線岩本町」 徒歩7分
東京メトロ日比谷線秋葉原」 徒歩10分
竣工 1989年09月 構造 SRC
規模 地上8階, 地下2階 耐震基準 新耐震基準
床構造 - 空調設備 個別空調
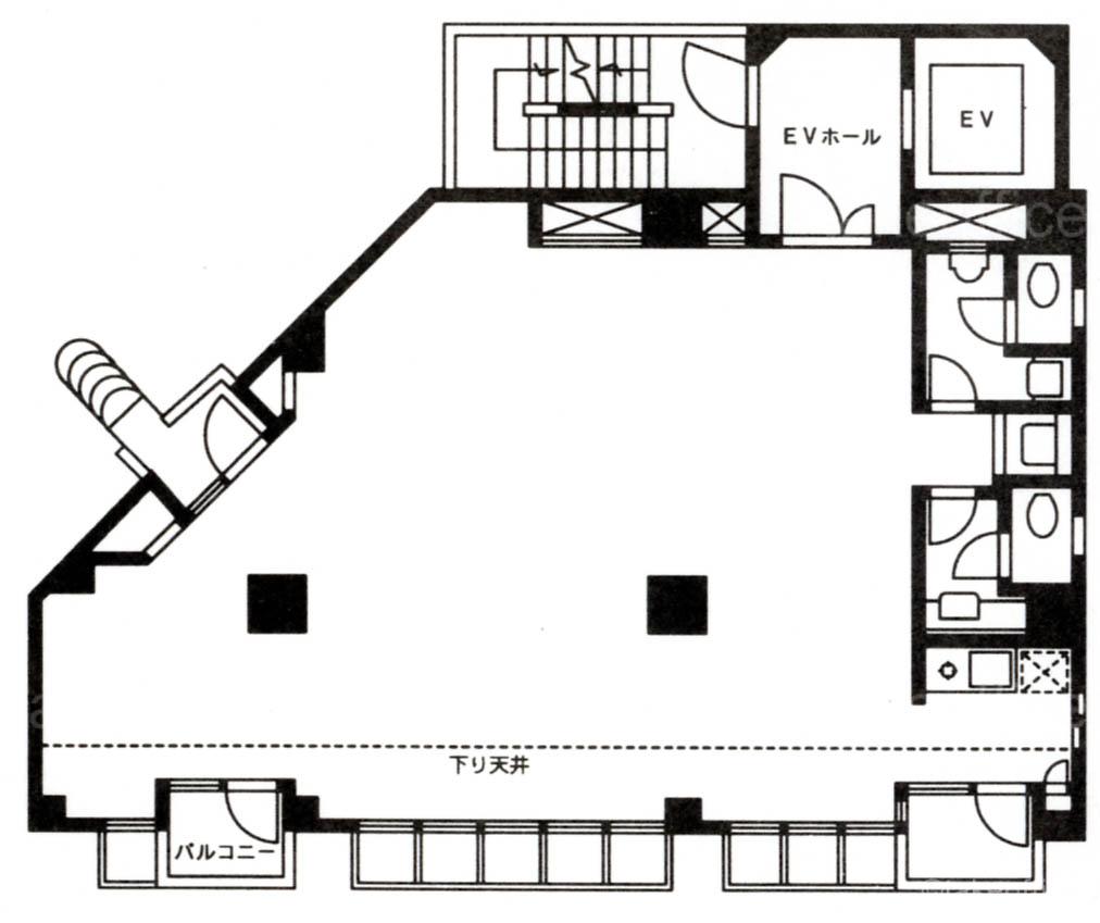
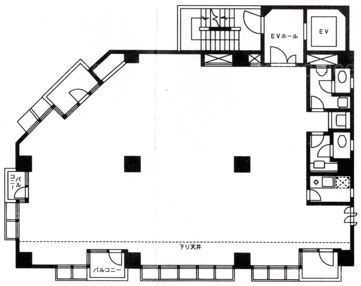
天井高 2400mm 基準階面積 60.89坪(201.3m2)
コンセント容量 - 施工会社

最新の募集状況や類似物件については、
こちらにお問い合わせください。

NOW PRINTING

外観

内見やお見積りなどの各種お問い合わせ

全物件
仲介手数料無料
仲介から
入居工事まで
ワンストップで対応
経験豊富なスタッフが
スピード感をもって
対応

周辺での似た条件の物件

非公開物件 多数あり!

お問い合わせフォーム