takeofficeなら掲載物件の仲介手数料は無料です

みづほビル

住所 東京都千代田区東神田2-1-3
交通 都営新宿線岩本町」 徒歩4分
東京メトロ日比谷線秋葉原」 徒歩6分
JR総武線(快速)馬喰町」 徒歩8分
竣工 1991年05月 構造 RC
規模 地上6階, 地下1階 耐震基準 新耐震基準
床構造 - 空調設備 個別空調
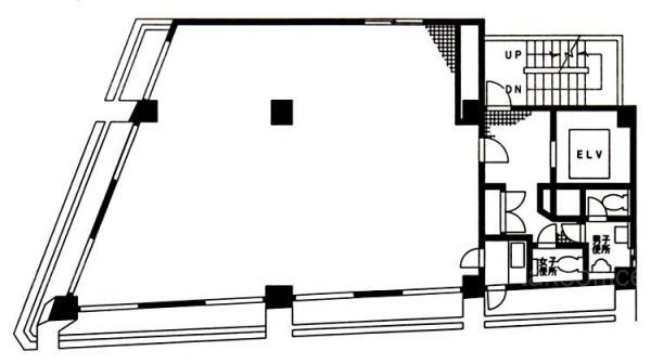
天井高 - 基準階面積 54.38坪(179.77m2)
コンセント容量 - 施工会社

最新の募集状況や類似物件については、
こちらにお問い合わせください。

みづほビル 外観

外観

  • みづほビル エントランス写真

    エントランス

  • 1F

    1F

  • 6F

    6F

内見やお見積りなどの各種お問い合わせ

全物件
仲介手数料無料
仲介から
入居工事まで
ワンストップで対応
経験豊富なスタッフが
スピード感をもって
対応

周辺での似た条件の物件

非公開物件 多数あり!

お問い合わせフォーム