takeofficeなら掲載物件の仲介手数料は無料です

住友生命東神田ビル

住所 東京都千代田区東神田2-5-15
交通 都営新宿線岩本町」 徒歩4分
都営新宿線馬喰横山」 徒歩5分
竣工 1986年04月 構造 SRC
規模 地上11階, 地下2階 耐震基準 新耐震基準
床構造 フリーアクセス 40mm 空調設備 個別空調
天井高 2460mm 基準階面積 172.3坪(569.59m2)
コンセント容量 25VA/m2 施工会社

最新の募集状況や類似物件については、
こちらにお問い合わせください。

住友生命東神田ビル 外観

外観

  • 住友生命東神田ビル エントランス写真

    エントランス

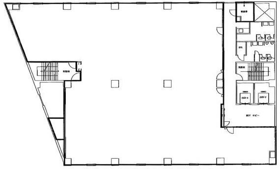
  • 基準階

    基準階

内見やお見積りなどの各種お問い合わせ

全物件
仲介手数料無料
仲介から
入居工事まで
ワンストップで対応
経験豊富なスタッフが
スピード感をもって
対応

周辺での似た条件の物件

非公開物件 多数あり!

お問い合わせフォーム