takeofficeなら掲載物件の仲介手数料は無料です

陽明ビル

住所 東京都千代田区岩本町2-9-11
交通 東京メトロ日比谷線小伝馬町」 徒歩4分
都営新宿線岩本町」 徒歩6分
JR総武線(快速)馬喰町」 徒歩7分
竣工 1973年03月 構造 SRC
規模 地上8階 耐震基準 旧耐震基準
床構造 フリーアクセス 空調設備 個別空調
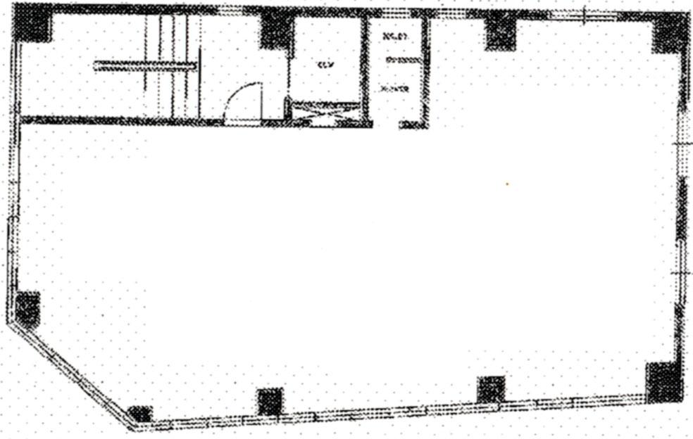
天井高 - 基準階面積 37.55坪(124.13m2)
コンセント容量 - 施工会社

最新の募集状況や類似物件については、
こちらにお問い合わせください。

陽明ビル 外観

外観

  • 陽明ビル エントランス写真

    エントランス

  • 基準階

    基準階

内見やお見積りなどの各種お問い合わせ

全物件
仲介手数料無料
仲介から
入居工事まで
ワンストップで対応
経験豊富なスタッフが
スピード感をもって
対応

周辺での似た条件の物件

非公開物件 多数あり!

お問い合わせフォーム