takeofficeなら掲載物件の仲介手数料は無料です

成田ビル

住所 東京都千代田区外神田2-3-6
交通 JR山手線秋葉原」 徒歩3分
JR中央線御茶ノ水」 徒歩3分
東京メトロ丸ノ内線御茶ノ水」 徒歩3分
竣工 1978年10月 構造 SRC
規模 地上9階 耐震基準 旧耐震基準
床構造 - 空調設備 個別空調
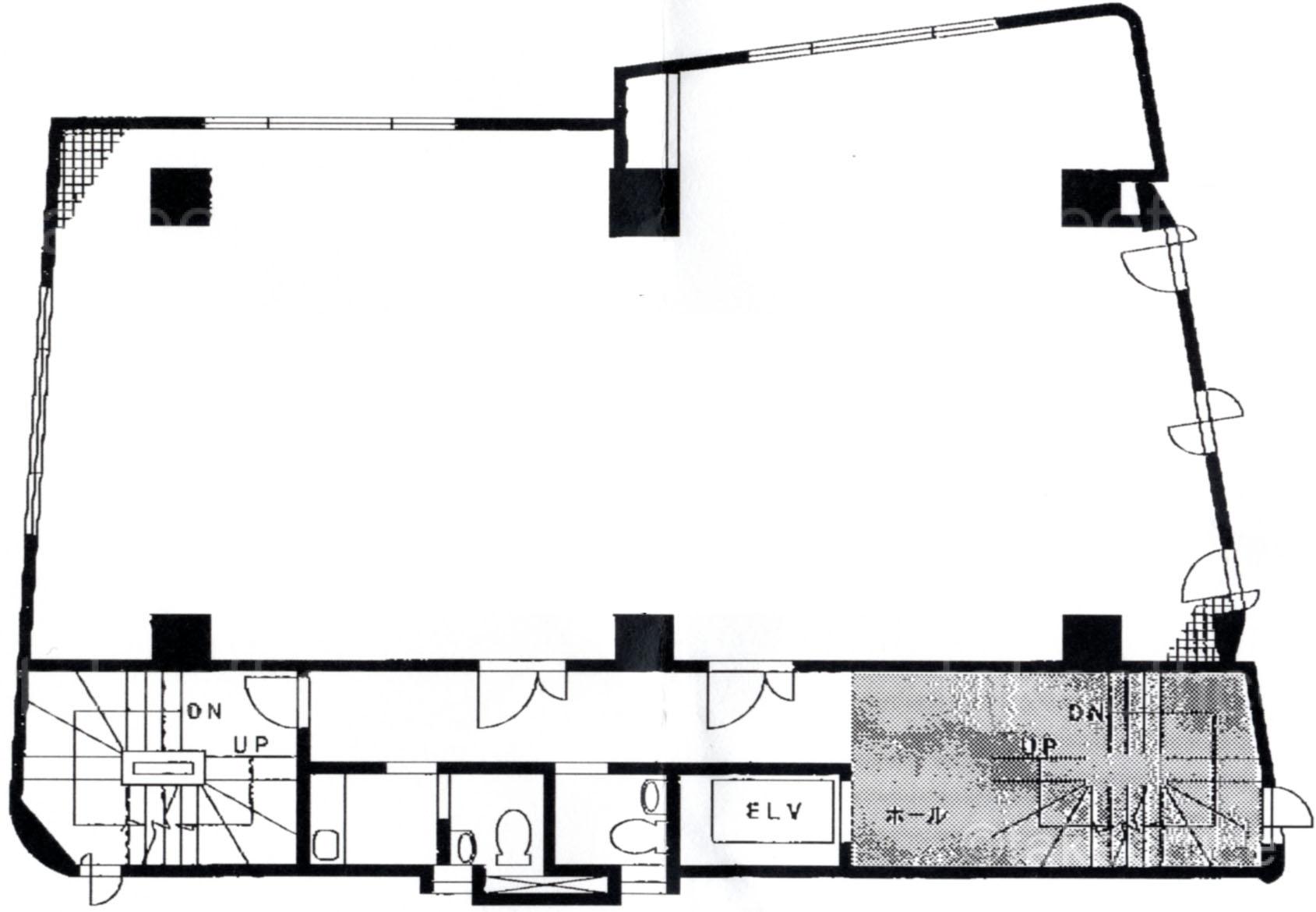
天井高 - 基準階面積 51.7坪(170.91m2)
コンセント容量 - 施工会社

最新の募集状況や類似物件については、
こちらにお問い合わせください。

成田ビル 外観

外観

  • 成田ビル エントランス写真

    エントランス

  • 3F

    3F

  • 7F

    7F

内見やお見積りなどの各種お問い合わせ

全物件
仲介手数料無料
仲介から
入居工事まで
ワンストップで対応
経験豊富なスタッフが
スピード感をもって
対応

周辺での似た条件の物件

非公開物件 多数あり!

お問い合わせフォーム