takeofficeなら掲載物件の仲介手数料は無料です

新神田ビル

住所 東京都千代田区外神田2-15-2
交通 東京メトロ銀座線末広町」 徒歩4分
JR中央線御茶ノ水」 徒歩6分
東京メトロ千代田線湯島」 徒歩7分
竣工 1983年06月 構造 SRC
規模 地上10階 耐震基準 新耐震基準
床構造 フリーアクセス 50mm 空調設備 個別空調
天井高 2400mm 基準階面積 104.45坪(345.29m2)
コンセント容量 - 施工会社

最新の募集状況や類似物件については、
こちらにお問い合わせください。

新神田ビル 外観

外観

  • 新神田ビル エントランス写真

    エントランス

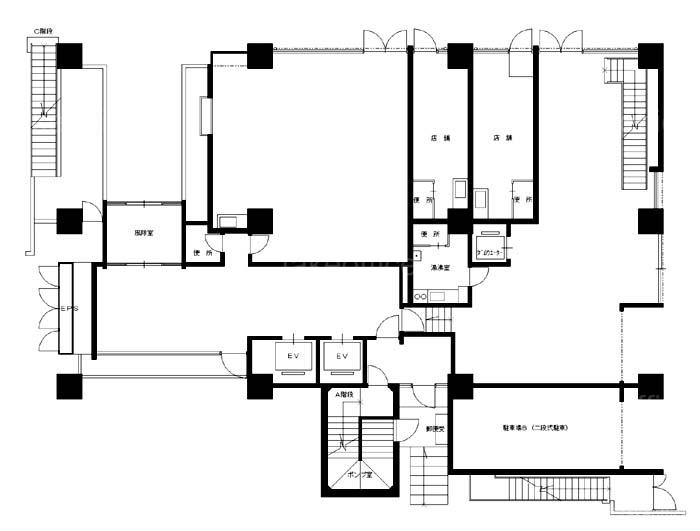
  • 1F

    1F

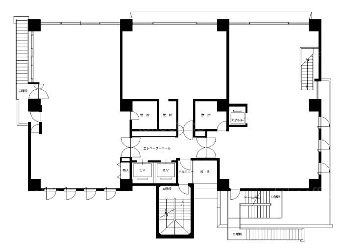
  • 2F

    2F

内見やお見積りなどの各種お問い合わせ

全物件
仲介手数料無料
仲介から
入居工事まで
ワンストップで対応
経験豊富なスタッフが
スピード感をもって
対応

周辺での似た条件の物件

非公開物件 多数あり!

お問い合わせフォーム