takeofficeなら掲載物件の仲介手数料は無料です

末広JFビル

住所 東京都千代田区外神田5-1-5
交通 東京メトロ銀座線末広町」 徒歩2分
東京メトロ千代田線湯島」 徒歩6分
東京メトロ銀座線上野広小路」 徒歩6分
竣工 1988年 月 構造 RC
規模 地上9階 耐震基準 新耐震基準
床構造 - 空調設備 個別空調
天井高 2400mm 基準階面積 27.5坪(90.91m2)
コンセント容量 - 施工会社

最新の募集状況や類似物件については、
こちらにお問い合わせください。

末広JFビル 外観

外観

  • 末広JFビル エントランス写真

    エントランス

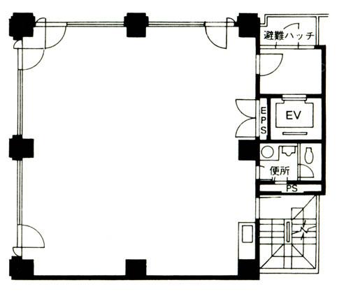
  • 基準階(3~8F)

    基準階(3~8F)

  • 2F

    2F

内見やお見積りなどの各種お問い合わせ

全物件
仲介手数料無料
仲介から
入居工事まで
ワンストップで対応
経験豊富なスタッフが
スピード感をもって
対応

周辺での似た条件の物件

非公開物件 多数あり!

お問い合わせフォーム