takeofficeなら掲載物件の仲介手数料は無料です

秋葉原センタービル

住所 東京都千代田区神田佐久間町3-37
交通 JR山手線秋葉原」 徒歩4分
都営新宿線岩本町」 徒歩6分
JR総武線(快速)馬喰町」 徒歩11分
竣工 1977年 構造 SRC
規模 地上4階, 地下0階 耐震基準 旧耐震基準
床構造 - 空調設備 個別空調
天井高 - 基準階面積 35坪(115.7m2)
コンセント容量 - 施工会社

最新の募集状況や類似物件については、
こちらにお問い合わせください。

NOW PRINTING

外観

  • NOW PRINTING

    エントランス

  • 基準階(2~3F)

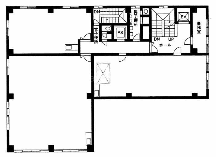
    基準階(2~3F)

  • 4F

    4F

内見やお見積りなどの各種お問い合わせ

全物件
仲介手数料無料
仲介から
入居工事まで
ワンストップで対応
経験豊富なスタッフが
スピード感をもって
対応

周辺での似た条件の物件

非公開物件 多数あり!

お問い合わせフォーム