takeofficeなら掲載物件の仲介手数料は無料です

インターアクトビル

住所 東京都千代田区神田佐久間町3-21
交通 JR山手線秋葉原」 徒歩4分
東京メトロ日比谷線秋葉原」 徒歩4分
都営新宿線岩本町」 徒歩5分
竣工 1987年07月 構造 SRC
規模 地上6階, 地下0階 耐震基準 新耐震基準
床構造 - 空調設備 個別空調
天井高 2500mm 基準階面積 27.25坪(90.08m2)
コンセント容量 - 施工会社

最新の募集状況や類似物件については、
こちらにお問い合わせください。

インターアクトビル 外観

外観

  • インターアクトビル エントランス写真

    エントランス

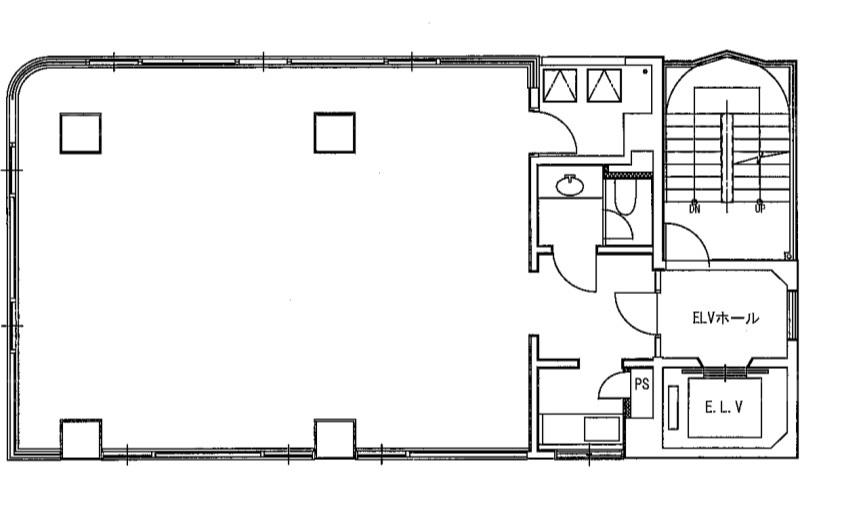
  • 基準階(3~7F)

    基準階(3~7F)

内見やお見積りなどの各種お問い合わせ

全物件
仲介手数料無料
仲介から
入居工事まで
ワンストップで対応
経験豊富なスタッフが
スピード感をもって
対応

周辺での似た条件の物件

非公開物件 多数あり!

お問い合わせフォーム