takeofficeなら掲載物件の仲介手数料は無料です

アキバ三滝館

住所 東京都千代田区外神田4-5-5
交通 東京メトロ銀座線末広町」 徒歩1分
JR山手線秋葉原」 徒歩5分
東京メトロ日比谷線秋葉原」 徒歩6分
竣工 2008年03月 構造 鉄骨造
規模 地上9階 耐震基準 新耐震基準
床構造 フリーアクセス 40mm 空調設備 個別空調
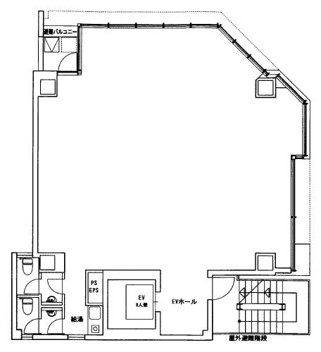
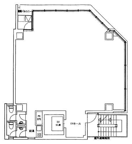
天井高 2450mm 基準階面積 35.64坪(117.82m2)
コンセント容量 - 施工会社

最新の募集状況や類似物件については、
こちらにお問い合わせください。

アキバ三滝館 外観

外観

内見やお見積りなどの各種お問い合わせ

全物件
仲介手数料無料
仲介から
入居工事まで
ワンストップで対応
経験豊富なスタッフが
スピード感をもって
対応

周辺での似た条件の物件

非公開物件 多数あり!

お問い合わせフォーム