takeofficeなら掲載物件の仲介手数料は無料です

(仮称)秋葉原MTビル

住所 東京都千代田区外神田4-4-7
交通 東京メトロ銀座線末広町」 徒歩3分
JR山手線秋葉原」 徒歩6分
東京メトロ千代田線湯島」 徒歩10分
竣工 2008年03月 構造 SRC
規模 地上10階, 地下1階 耐震基準 新耐震基準
床構造 - 空調設備 -
天井高 - 基準階面積 40.38坪(133.49m2)
コンセント容量 - 施工会社

最新の募集状況や類似物件については、
こちらにお問い合わせください。

NOW PRINTING

外観

  • NOW PRINTING

    エントランス

  • 基準階(3~6F)

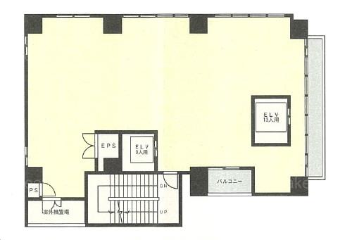
    基準階(3~6F)

  • 7F

    7F

内見やお見積りなどの各種お問い合わせ

全物件
仲介手数料無料
仲介から
入居工事まで
ワンストップで対応
経験豊富なスタッフが
スピード感をもって
対応

周辺での似た条件の物件

非公開物件 多数あり!

お問い合わせフォーム