takeofficeなら掲載物件の仲介手数料は無料です

KDX秋葉原ビル

住所 東京都千代田区神田岩本町1-14
交通 都営新宿線岩本町」 徒歩1分
JR山手線秋葉原」 徒歩3分
JR京浜東北線神田」 徒歩6分
竣工 1973年12月 構造 SRC
規模 地上9階, 地下1階 耐震基準 新耐震基準
床構造 フリーアクセス 29mm 空調設備 個別空調
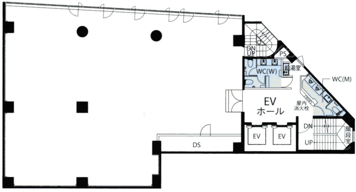
天井高 2570mm 基準階面積 76.09坪(251.54m2)
コンセント容量 50VA/m2 施工会社

最新の募集状況や類似物件については、
こちらにお問い合わせください。

KDX秋葉原ビル 外観

外観

  • NOW PRINTING

    エントランス

  • 基準階 (2F~9)

    基準階 (2F~9)

  • 1F

    1F

  • B1F

    B1F

建物パンフレット

建物パンフレットは作成時点のものであり、また計画段階のものも含まれる為、実際とは異なる場合がございます。

内見やお見積りなどの各種お問い合わせ

全物件
仲介手数料無料
仲介から
入居工事まで
ワンストップで対応
経験豊富なスタッフが
スピード感をもって
対応

周辺での似た条件の物件

非公開物件 多数あり!

お問い合わせフォーム