takeofficeなら掲載物件の仲介手数料は無料です

NCO神田紺屋町

住所 東京都千代田区神田紺屋町8
交通 JR総武線(快速)新日本橋」 徒歩4分
JR山手線神田」 徒歩5分
都営新宿線岩本町」 徒歩6分
竣工 1991年05月 構造 SRC
規模 地上7階, 地下1階 耐震基準 新耐震基準
床構造 フリーアクセス 50mm 空調設備 個別空調
天井高 2550mm 基準階面積 129.73坪(428.86m2)
コンセント容量 - 施工会社

最新の募集状況や類似物件については、
こちらにお問い合わせください。

NCO神田紺屋町 外観

外観

  • NOW PRINTING

    エントランス

  • 基準階

    基準階

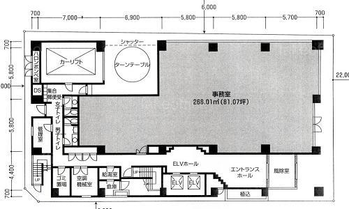
  • 1F

    1F

建物パンフレット

建物パンフレットは作成時点のものであり、また計画段階のものも含まれる為、実際とは異なる場合がございます。

内見やお見積りなどの各種お問い合わせ

全物件
仲介手数料無料
仲介から
入居工事まで
ワンストップで対応
経験豊富なスタッフが
スピード感をもって
対応

周辺での似た条件の物件

非公開物件 多数あり!

お問い合わせフォーム