takeofficeなら掲載物件の仲介手数料は無料です

山東ビル

住所 東京都千代田区神田紺屋町13
交通 JR総武線(快速)新日本橋」 徒歩4分
JR山手線神田」 徒歩5分
東京メトロ銀座線神田」 徒歩5分
竣工 1973年09月 構造 SRC
規模 地上9階 耐震基準 旧耐震基準
床構造 - 空調設備 個別空調
天井高 - 基準階面積 31坪(104m2)
コンセント容量 - 施工会社

最新の募集状況や類似物件については、
こちらにお問い合わせください。

山東ビル 外観

外観

  • 山東ビル エントランス写真

    エントランス

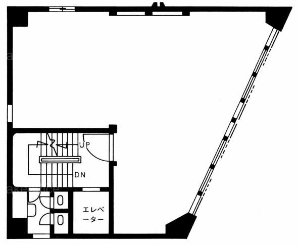
  • 基準階(6~7F)

    基準階(6~7F)

  • 1F

    1F

内見やお見積りなどの各種お問い合わせ

全物件
仲介手数料無料
仲介から
入居工事まで
ワンストップで対応
経験豊富なスタッフが
スピード感をもって
対応

周辺での似た条件の物件

非公開物件 多数あり!

お問い合わせフォーム