takeofficeなら掲載物件の仲介手数料は無料です

マルコビル

住所 東京都千代田区神田須田町1-12-6
交通 JR山手線神田」 徒歩3分
東京メトロ銀座線神田」 徒歩3分
東京メトロ丸ノ内線淡路町」 徒歩3分
竣工 1987年08月 構造 RC
規模 地上5階 耐震基準 新耐震基準
床構造 フリーアクセス 空調設備 個別空調
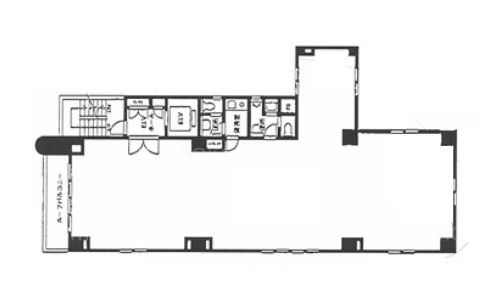
天井高 - 基準階面積 53.09坪(175.5m2)
コンセント容量 - 施工会社

最新の募集状況や類似物件については、
こちらにお問い合わせください。

マルコビル 外観

外観

  • NOW PRINTING

    エントランス

内見やお見積りなどの各種お問い合わせ

全物件
仲介手数料無料
仲介から
入居工事まで
ワンストップで対応
経験豊富なスタッフが
スピード感をもって
対応

周辺での似た条件の物件

非公開物件 多数あり!

お問い合わせフォーム