takeofficeなら掲載物件の仲介手数料は無料です

THE CROSS神田

住所 東京都千代田区神田須田町1-24-4
交通 東京メトロ銀座線神田」 徒歩2分
JR山手線神田」 徒歩3分
都営新宿線岩本町」 徒歩4分
竣工 1998年07月 構造 SRC
規模 地上8階, 地下1階 耐震基準 新耐震基準
床構造 フリーアクセス 60mm 空調設備 個別空調
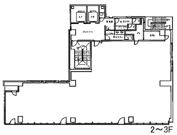
天井高 2580mm 基準階面積 84.46坪(279.21m2)
コンセント容量 - 施工会社

最新の募集状況や類似物件については、
こちらにお問い合わせください。

THE CROSS神田 外観

外観

内見やお見積りなどの各種お問い合わせ

全物件
仲介手数料無料
仲介から
入居工事まで
ワンストップで対応
経験豊富なスタッフが
スピード感をもって
対応

周辺での似た条件の物件

非公開物件 多数あり!

お問い合わせフォーム