takeofficeなら掲載物件の仲介手数料は無料です

神田須田町ビル

住所 東京都千代田区神田須田町2-2-2
交通 JR山手線神田」 徒歩3分
都営新宿線岩本町」 徒歩3分
JR京浜東北線秋葉原」 徒歩6分
竣工 1992年07月 構造 鉄骨造
規模 地上10階 耐震基準 新耐震基準
床構造 フリーアクセス 空調設備 個別空調
天井高 2500mm 基準階面積 41.37坪(136.76m2)
コンセント容量 - 施工会社

最新の募集状況や類似物件については、
こちらにお問い合わせください。

神田須田町ビル 外観

外観

  • 神田須田町ビル エントランス写真

    エントランス

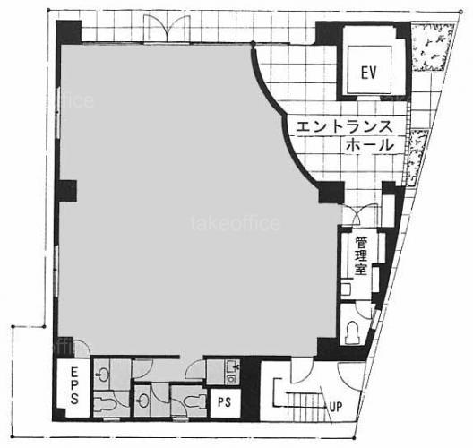
  • 基準階(2~9F)

    基準階(2~9F)

  • 1F

    1F

  • 10F

    10F

内見やお見積りなどの各種お問い合わせ

全物件
仲介手数料無料
仲介から
入居工事まで
ワンストップで対応
経験豊富なスタッフが
スピード感をもって
対応

周辺での似た条件の物件

非公開物件 多数あり!

お問い合わせフォーム