takeofficeなら掲載物件の仲介手数料は無料です

OS85ビル

住所 東京都千代田区神田須田町2-6-5
交通 東京メトロ銀座線神田」 徒歩2分
都営新宿線岩本町」 徒歩2分
JR山手線神田」 徒歩5分
竣工 1985年04月 構造 SRC
規模 地上10階, 地下1階 耐震基準 新耐震基準
床構造 フリーアクセス 50mm 空調設備 個別空調
天井高 2450mm 基準階面積 77坪(254m2)
コンセント容量 - 施工会社

最新の募集状況や類似物件については、
こちらにお問い合わせください。

OS85ビル 外観

外観

  • OS85ビル エントランス写真

    エントランス

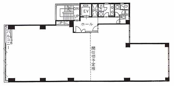
  • 基準階(2~6F)

    基準階(2~6F)

  • 1F

    1F

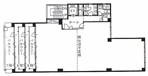
  • 7~9F

    7~9F

内見やお見積りなどの各種お問い合わせ

全物件
仲介手数料無料
仲介から
入居工事まで
ワンストップで対応
経験豊富なスタッフが
スピード感をもって
対応

周辺での似た条件の物件

非公開物件 多数あり!

お問い合わせフォーム