takeofficeなら掲載物件の仲介手数料は無料です

神田21ビル

住所 東京都千代田区神田多町2-2-21
交通 JR山手線神田」 徒歩1分
竣工 1988年10月 構造 SRC
規模 地上8階, 地下1階 耐震基準 新耐震基準
床構造 フリーアクセス 50mm 空調設備 個別空調
天井高 2550mm 基準階面積 98.45坪(325.45m2)
コンセント容量 - 施工会社

最新の募集状況や類似物件については、
こちらにお問い合わせください。

神田21ビル 外観

外観

  • NOW PRINTING

    エントランス

  • 基準階

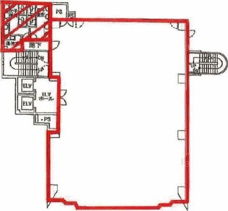
    基準階

内見やお見積りなどの各種お問い合わせ

全物件
仲介手数料無料
仲介から
入居工事まで
ワンストップで対応
経験豊富なスタッフが
スピード感をもって
対応

周辺での似た条件の物件

非公開物件 多数あり!

お問い合わせフォーム