takeofficeなら掲載物件の仲介手数料は無料です

KDX神田北口ビル

住所 東京都千代田区神田鍛冶町3-5-8
交通 東京メトロ銀座線神田」 徒歩3分
東京メトロ丸ノ内線淡路町」 徒歩5分
都営新宿線小川町」 徒歩5分
竣工 1993年05月 構造 鉄骨造+SRC
規模 地上8階, 地下1階 耐震基準 新耐震基準
床構造 - 空調設備 個別空調
天井高 2500mm 基準階面積 69.69坪(230.38m2)
コンセント容量 - 施工会社

最新の募集状況や類似物件については、
こちらにお問い合わせください。

KDX神田北口ビル 外観

外観

  • KDX神田北口ビル エントランス写真

    エントランス

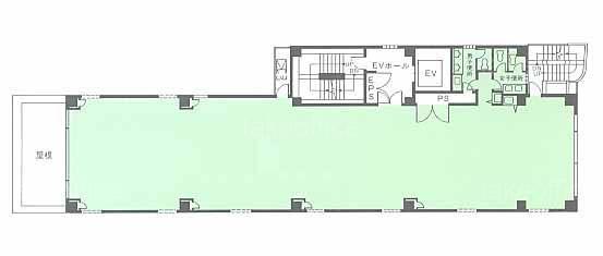
  • 基準階(3~7F)

    基準階(3~7F)

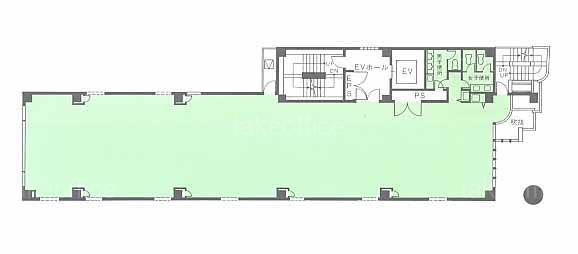
  • 1F

    1F

  • 2F

    2F

  • 8F

    8F

内見やお見積りなどの各種お問い合わせ

全物件
仲介手数料無料
仲介から
入居工事まで
ワンストップで対応
経験豊富なスタッフが
スピード感をもって
対応

周辺での似た条件の物件

非公開物件 多数あり!

お問い合わせフォーム