takeofficeなら掲載物件の仲介手数料は無料です

喜助新神田ビル

住所 東京都千代田区神田美倉町10
交通 JR総武線(快速)新日本橋」 徒歩4分
JR中央線神田」 徒歩6分
東京メトロ銀座線神田」 徒歩6分
竣工 1967年01月 構造 SRC
規模 地上7階, 地下1階 耐震基準 旧耐震基準
床構造 - 空調設備 セントラル空調
天井高 2400mm 基準階面積 119坪(393m2)
コンセント容量 - 施工会社

最新の募集状況や類似物件については、
こちらにお問い合わせください。

喜助新神田ビル 外観

外観

  • 喜助新神田ビル エントランス写真

    エントランス

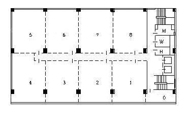
  • 基準階2-5F

    基準階2-5F

  • 1F

    1F

内見やお見積りなどの各種お問い合わせ

全物件
仲介手数料無料
仲介から
入居工事まで
ワンストップで対応
経験豊富なスタッフが
スピード感をもって
対応

周辺での似た条件の物件

非公開物件 多数あり!

お問い合わせフォーム