takeofficeなら掲載物件の仲介手数料は無料です

彦田ビル

住所 東京都千代田区鍛冶町1-4-7
交通 JR山手線神田」 徒歩1分
東京メトロ銀座線神田」 徒歩3分
JR総武線(快速)新日本橋」 徒歩3分
竣工 1989年07月 構造 SRC
規模 地上8階 耐震基準 新耐震基準
床構造 - 空調設備 個別空調
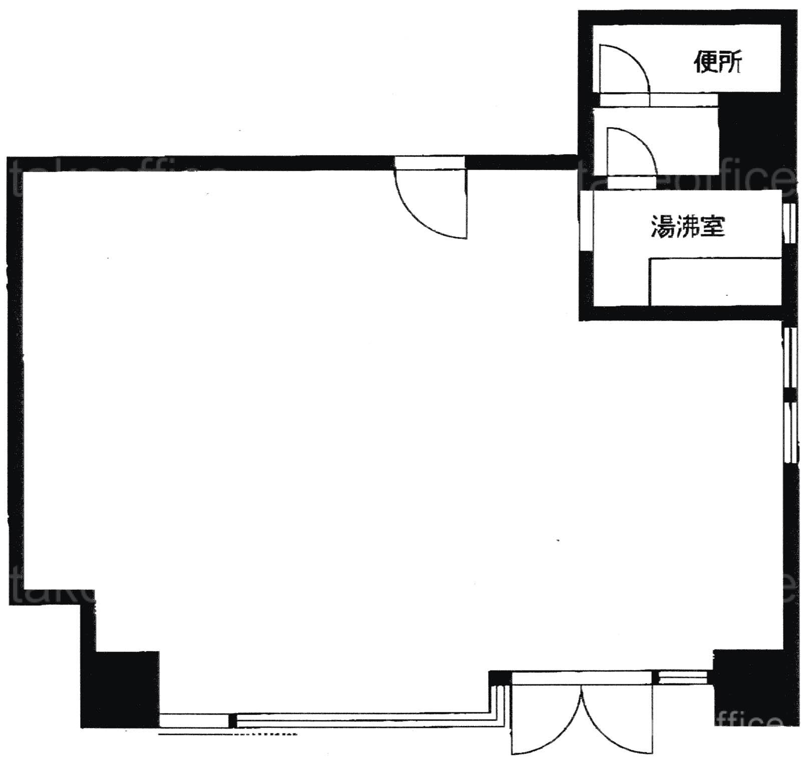
天井高 - 基準階面積 28.61坪(94.58m2)
コンセント容量 - 施工会社

最新の募集状況や類似物件については、
こちらにお問い合わせください。

彦田ビル 外観

外観

  • 彦田ビル エントランス写真

    エントランス

  • 1F

    1F

  • 2F

    2F

内見やお見積りなどの各種お問い合わせ

全物件
仲介手数料無料
仲介から
入居工事まで
ワンストップで対応
経験豊富なスタッフが
スピード感をもって
対応

周辺での似た条件の物件

非公開物件 多数あり!

お問い合わせフォーム